La Bégude-de-Mazenc
Maison contemporaine avec piscine
1 700 000€
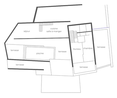
Plan
Magnifique maison individuelle contemporaine du XIIe siècle en Drôme provençale (La Bégude-de-Mazenc - 26160) de 310m2.
Sans vis à vis, le lieu est clos et protégé des regards.
Elle est entièrement rénovée et présente de prestations luxueuses rares et raffinées. Elle dispose de 5 chambres avec salles d’eau, d'une piscine 4 x 8 m, de 5 terrasses et coursive, 3 place de parkings, un terrain de boule, un bureau, des locaux techniques, un garage fermé et une galerie d’art.
Elle est composée de 3 niveaux :
Au rez-de-chaussée, d'une entrée, dégagement, d'un WC, d'un salon avec cuisine ouverte d'environ 80m2.
Au rez-de-chaussée haut, d'une chambre parentale de 19m2 avec un bureau, une salle d'eau et un WC, d'un dégagement et d'un placard.
Au rez-de-chaussée bas, d'un couloir, un dégagement, un WC, une tour donnant accès à un atelier/galerie de plus de 60m2, de 4 grandes chambres donnant sur la piscine avec chacune une salle d'eau.
Parties annexes :
Au rez-de-chaussée haut : Terrasse
Au rez-de-chaussée bas : Chaufferie, cave, machinerie de la piscine, garage et pool house.
Ce havre de paix profite du cadre authentique de la Bégude-de-Mazenc, charmant village typique de la Drôme Provençale, réputé pour sa qualité de vie, ses paysages vallonnés, ses champs de lavande et ses oliveraies. Vous bénéficiez d’un accès aisé aux principaux axes routiers, aux commerces de proximité, aux services, et aux nombreuses activités de plein air (randonnées, vélo, marchés locaux, découvertes oenologiques et gastronomiques).
Vue exceptionnelle sur la vallée du Rhône et les monts de l’Ardèche.
Dans un triangle entre Grignan à 18km, Montélimar à 16km et Dieulefit à 13 km. TGV Paris/Gare de Lyon : 2 H 40 mn puis 20min de voiture depuis Montélimar.
Dossier complet et informations supplémentaires disponibles sur demande.





